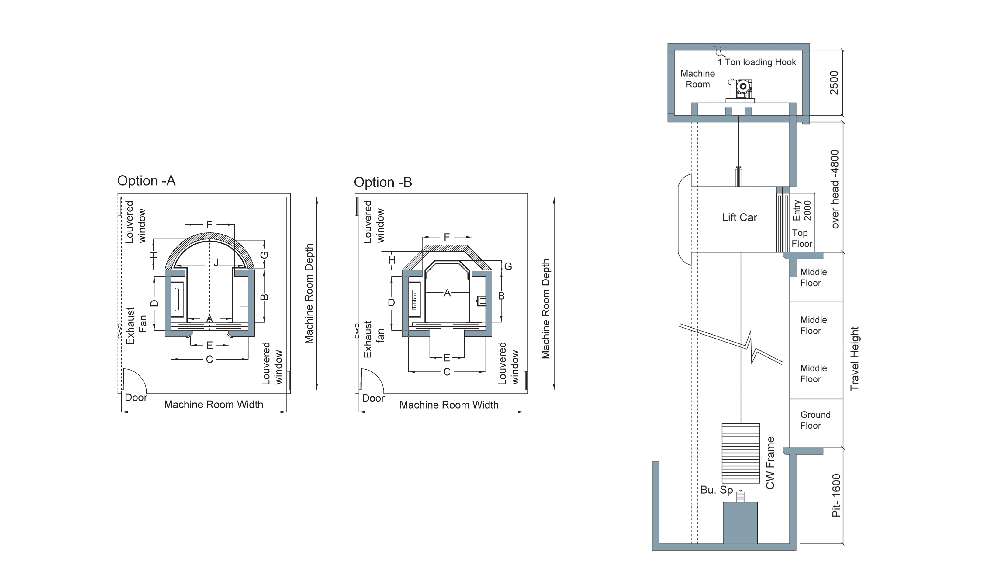
胶囊电梯

这些升降机采用的技术是超先进的

胶囊电梯

  • 此类电梯可安装在建筑外立面或大堂区域

  • 安装后将彻底改变建筑的整体视觉效果

  • 采用尖端超前的电梯技术

  • 三面玻璃胶囊轿厢载客量6-35人

  • 五面玻璃胶囊轿厢最低载客量13人

  • 可定制八角形特殊轿厢设计

  • 可选配底部照明大理石地板、钟形穹顶及定制化轿厢外饰

  • 独家特色:可配置全玻璃自动门系统

  • 玻璃胶囊轿厢能显著提升整体美观度

  • 根据机房位置可选配曳引式或液压式驱动系统

  • 除轿厢外其他规格与常规客梯保持一致

红外线门探测器

我们为客户提供高品质电梯红外门探测器系列,该装置安装于电梯层门位置,集成智能感应系统可精准识别人流与货物进出。产品具有多种规格可选,以创新设计满足不同应用场景需求。

可选配置一览
运行速度1.00至1.5米/秒
轿厢视野类型单面观景 / 三面观景 / 半圆形观景
轿厢装饰

玻璃搭配粉末喷涂碳钢轿厢

玻璃搭配拉丝不锈钢轿厢

玻璃搭配设计款钢制拉丝轿厢

门体装饰

粉末喷涂碳钢自动门

拉丝不锈钢自动门

设计款不锈钢自动门

钛金设计款自动门

玻璃配不锈钢边框自动门

控制面板按钮表面微触按钮、触摸式按钮
控制面板显示屏16毫米超薄显示屏
显示方式

七段数码LED显示

点阵数码显示 / LCD液晶显示

获取我们的详细手册,点击这里